
Laguna House
Phuket, Thailand

Porous courtyards - “Porosity is the percentage of void space in a rock. It is defined as the ratio of the volume of the voids or pore space divided by the total volume."
Location
Phuket, Thailand
Project Size
500 m²
Status
Completed 2024
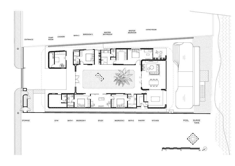
For plans & diagrams
The Laguna Residence is a testament to Enter Projects Asia’s innovative approach to sustainable design. Utilizing advanced 3D printing technology and natural brick materials, this private villa explores the balance between solid and void, with brick walls that transition from solid forms to open arches and intricate latticework.
Located on the Laguna Golf Phuket course, this three-bedroom, three-bathroom home captures stunning sunsets and natural wind flow. Designed with sustainability in mind, the villa uses sun and wind studies to optimize orientation, reduce energy consumption, and incorporate solar power and extended roof overhangs to minimize the need for air conditioning.
Merging modern aesthetics with traditional craftsmanship, the residence features custom furnishings made from locally sourced materials, creating a warm and serene interior. The 18-meter free-form pool and private courtyard seamlessly blend indoor and outdoor living, while each space is designed for optimal cross-ventilation.
Sustainability is central, with solar panels, a hybrid water heater, and an EV charging station contributing to its energy efficiency. The Laguna Residence is not just a home but a forward-thinking solution to modern living, where tradition and technology coexist in harmony











To find out more about this project





